Laureles - Medellín
Apartaestudios – Laureles, Medellín
Diseño contemporáneo, ubicación premium y rentabilidad inmobiliaria en uno de los sectores más consolidados de Medellín.
Apartaestudios – Laureles, Medellín
Diseño contemporáneo, ubicación premium y rentabilidad inmobiliaria en uno de los sectores más consolidados de Medellín.
Que es el proyecto
Apartaestudios Laureles es un proyecto inmobiliario urbano desarrollado por AJS Constructores S.A.S., concebido para renta corta, renta media y uso ejecutivo, con un enfoque claro en eficiencia operativa y valorización.
Características principales

Lote
Lote adquirido.

Planos
Planos arquitectónicos diseñados y radicados.

Edificio
Edificio de 10 apartaestudios con áreas entre 35 m² y 39 m².

Local
Local comercial / bodega en primer piso.

Diseño
Diseño optimizado para alta ocupación anual.
Entre Ríos y Montañas
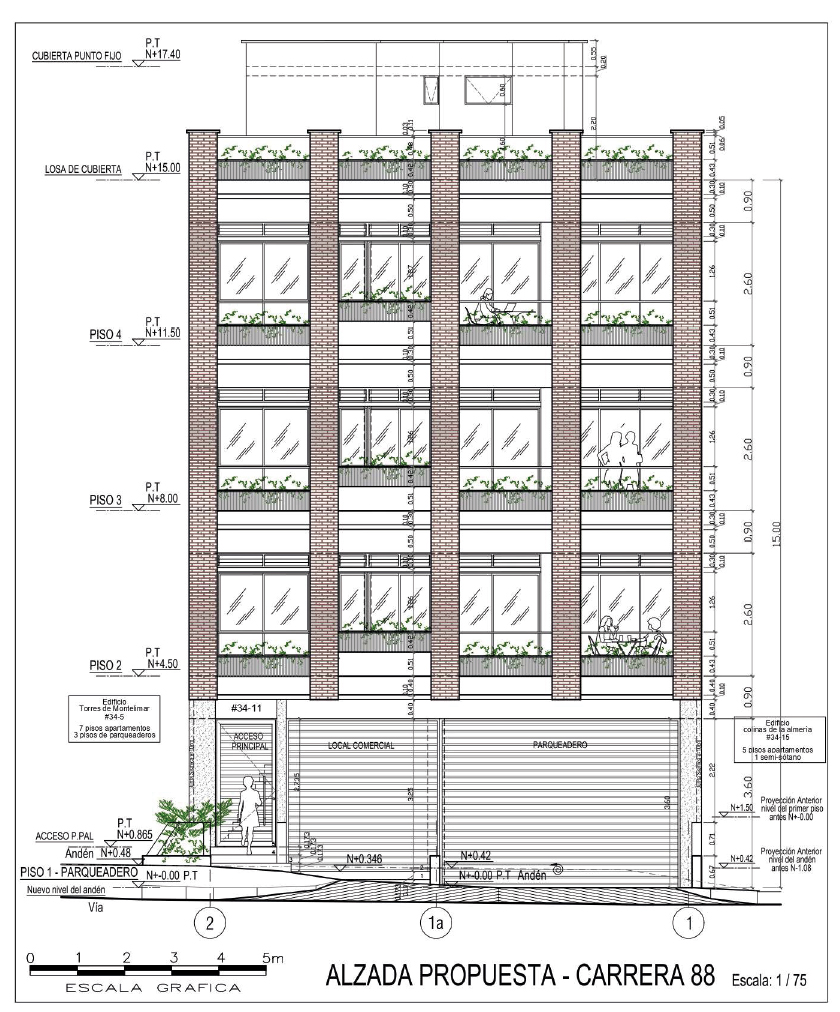
Fachada
Apartaestudios – Laureles, Medellín
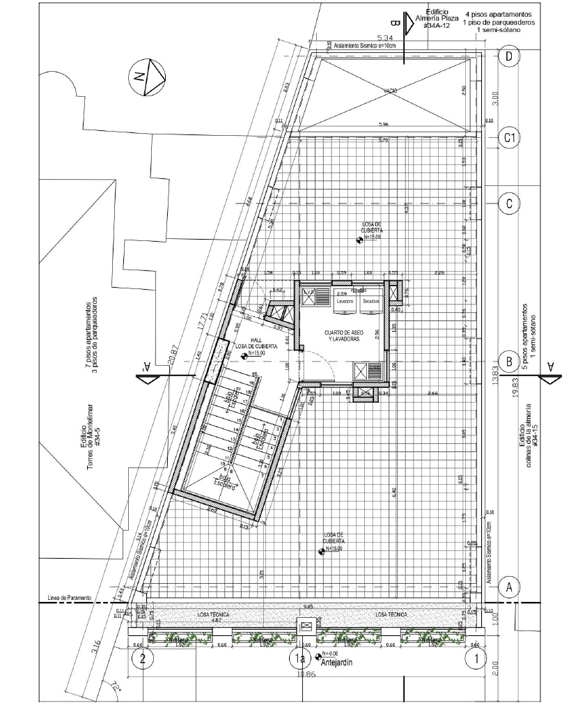
ARQUITECTURA Y DISEÑO
El proyecto presenta una arquitectura contemporánea, optimizada para un lote urbano irregular, priorizando el aprovechamiento del área construida, la iluminación natural y la ventilación cruzada.
Cada decisión de diseño responde a criterios de:

Funcionalidad

Bajo mantenimiento

Eficiencia constructiva

Rentabilidad inmobiliaria
Apartaestudios – Laureles, Medellín
TIPOLOGÍAS DE APARTAESTUDIOS
Los apartaestudios están diseñados para una o dos personas, ideales para:
- Rentas cortas (turismo, estadías temporales).
- Rentas medias (ejecutivos, profesionales).
- Uso residencial urbano.
Características generales

Cocina integrada

Sala–comedor

Alcoba independiente

Baño completo

Balcón en unidades seleccionadas
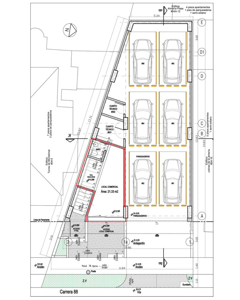
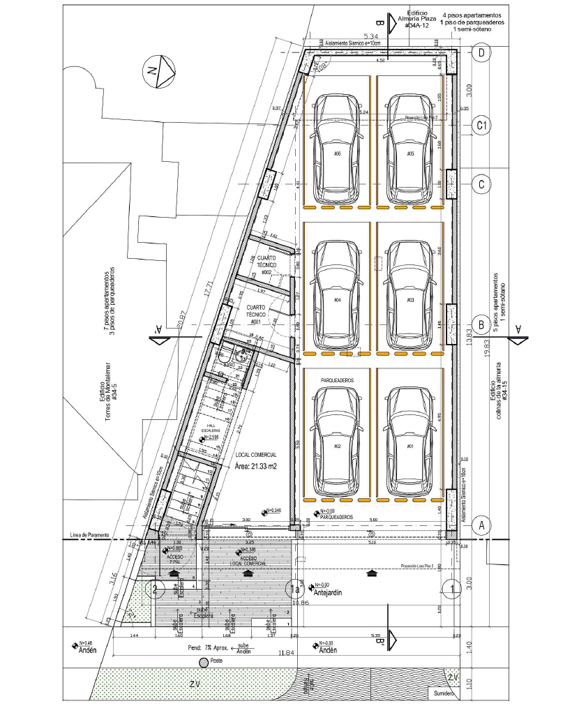
PRIMER PISO Y PARQUEADEROS
El primer piso está concebido para una operación urbana eficiente, integrando:
- Parqueaderos privados
- Accesos peatonales independientes
- Local comercial con frente a vía principal
- Áreas técnicas y de servicio
Este esquema mejora la funcionalidad del edificio y su integración con el entorno.
Ubicación
Ubicado en el barrio Laureles, uno de los sectores más valorizados y demandados de Medellín, el proyecto cuenta con:
- Excelente conectividad vial
- Cercanía a zonas gastronómicas y comerciales
- Entorno residencial consolidado
- Alta demanda para alquiler urbano
OPERACIÓN Y RENTABILIDAD
El proyecto está diseñado para mantener alta ocupación durante todo el año, combinando distintos tipos de renta:
- Renta corta
- Renta media
- Renta ejecutiva
Esto permite:
- Flujo constante de ingreso
- Diversificación del riesgo
- Optimización del retorno anual
MODELO DE INVERSIÓN Y TOKENIZACIÓN
Apartaestudios Laureles incorpora un modelo híbrido de inversión, que combina la estructura inmobiliaria tradicional con esquemas modernos de participación digital.
Este modelo busca:
- Facilitar el acceso a la inversión inmobiliaria.
- Mejorar la escalabilidad del proyecto
- Aumentar la transparencia y trazabilidad de los flujos
Fachada y renders
Arquitectura y planos
Primer piso y parqueaderos
Ubicación
Respaldo AJS Constructores
AJS Constructores S.A.S. cuenta con más de 20 años de experiencia en el sector de la construcción y el desarrollo inmobiliario, ejecutando proyectos residenciales, comerciales y de inversión con criterios técnicos, financieros y legales sólidos.
Proyecciones y supuestos
Teaser de proyecciones
¿Quieres conocer todos los detalles del proyecto o evaluar una oportunidad de inversión?